Work
About
Contact
Work
About
Contact
JASON LI

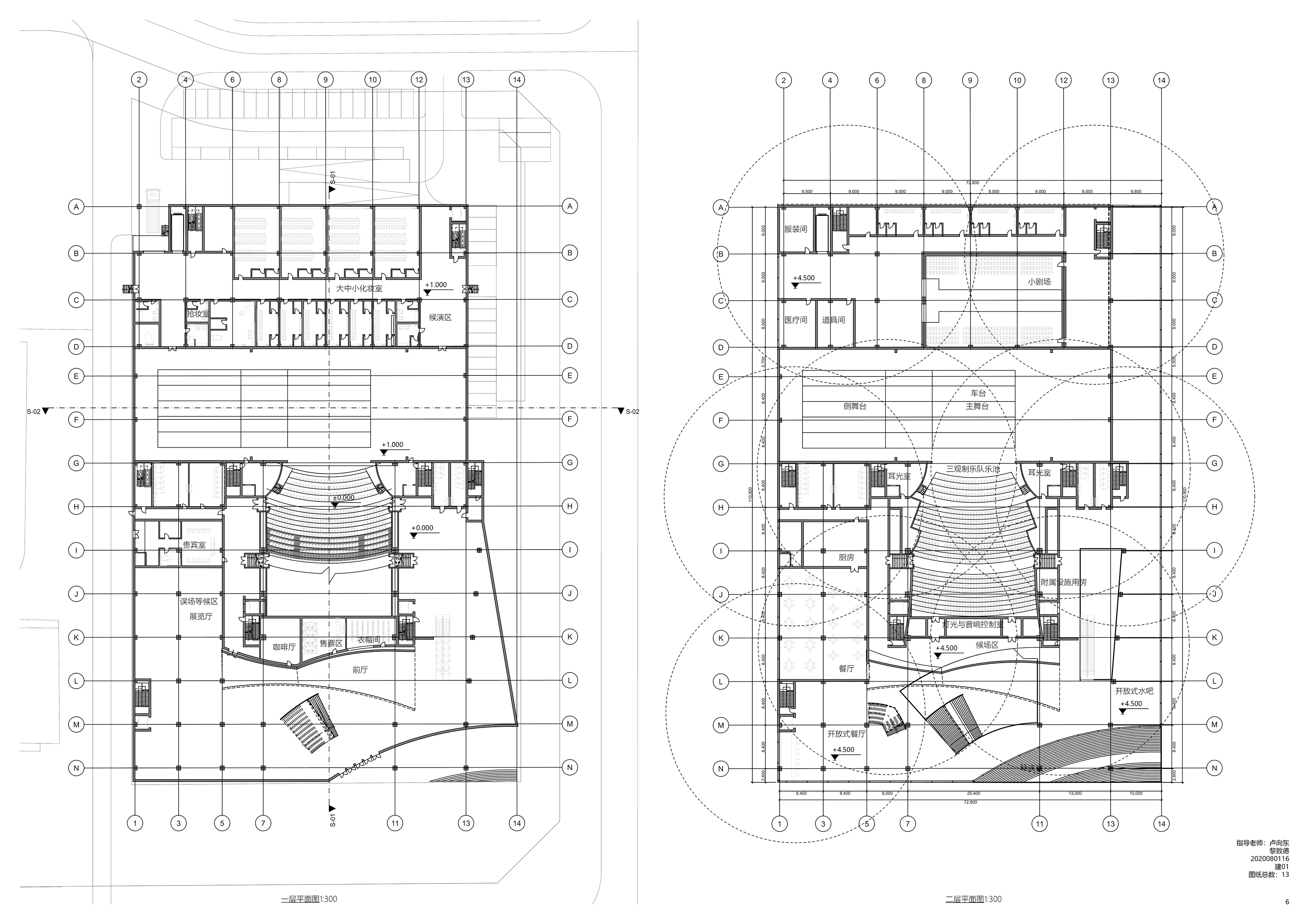
WUDAOKOU THEATRE

You may also like

ULI HINES: IN BETWEEN
2026
Winding Meadow Community
2023
NOTAHOTEL: WOVEN
2026
TRAIL'S END: KUMANO KODO
2025
TRAIL'S END: TEA HORSE ROAD
2025
AEOLUS
2024
DARTMOOR REWILDING
2025
MINGYANGLI INN
2026
TERRAFORM 3D
2025
THERMAE 76
2025
↑Back to Top
Powered by Adobe Portfolio